Skip to navigation (Press Enter).
Skip to main content (Press Enter).
utewittich.de
Sie sind hier
Startseite
›
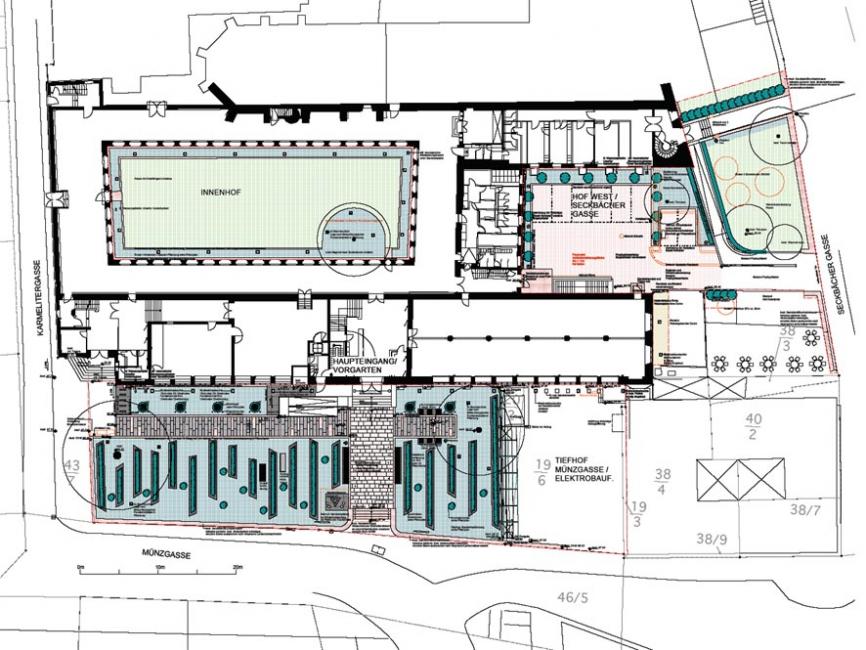
INSTITUT FÜR STADTGESCHICHTE - Frankfurt am Main
Gesamtplan